Zurück

Zeitlose Architektur mit modernem Komfort: Flexible Büroflächen im sanierten Geschäftshaus

Trefugium

Adresse
Trefugium
Neue Grünstraße 25 - 26
10179 Berlin
Mitte

Verfügbar ab
Sofort


Fläche
bis 2.454 m2

Teilbar ab m2
ab 484 m2


Mietpreis ab m2
ab 25,00 €

Provision
Provisionsfrei


Ausstattung

  • ZERTIFIZIERUNG: BREEAM In-Use: Building Mangement (good)/Asset (very good).
  • KLIMATISIERUNG: Außenliegender Sonnenschutz + Natürliche Belüftung und unterstützende Spitzenlastkühlung
  • EDV: Hohlraum- / Doppelbodenkombination

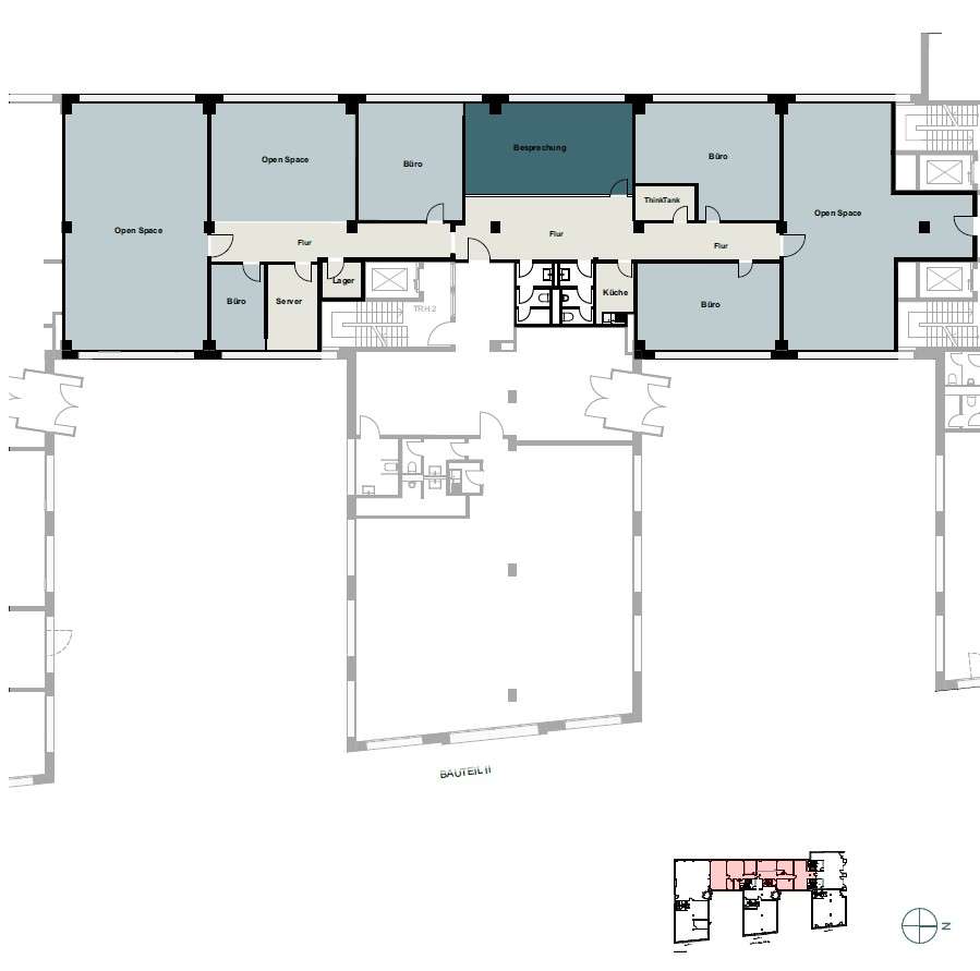
Grundrisse


Anbindung

U-Bahn
290 m
Regionalverkehr
2,8 km
S-Bahn
2,8 km
Flughafen-BER
24,8 km
Fernverkehr
3 km
Flughafen-Express
2 km

Karte

Ansprechpartner

Isabella Kossoi

Tel.: +49 (0)30 600 31 55 - 01
E-Mail.:

Exposé anfragen

Wir speichern Ihre Daten zur Bearbeitung Ihrer Anfrage. Weitere Informationen erhalten Sie in unserer Datenschutzerklärung.



In der Nähe