Zurück

Moderne Büroflächen mit Top-Ausstattung in bester Lage von Tegel

Sirius Business Park Berlin-Borsigwerke

Adresse
Sirius Business Park Berlin-Borsigwerke
Egellsstraße 21
13507 Berlin
Reinickendorf

Verfügbar ab
Sofort


Fläche
bis 1.229 m2

Teilbar ab m2
ab 400 m2


Mietpreis ab m2
ab 9,49 €

Provision
Provisionsfrei


Ausstattung

  • BESONDERHEITEN: hauseigene Btriebskantine, Empfangsservice sowie ein Sicherheitsdienst
  • EDV: Cat 6
  • KLIMATISIERUNG: Fernwärme
  • STELLPLÄTZE: können in ausreichender Anzahl angemietet werden.

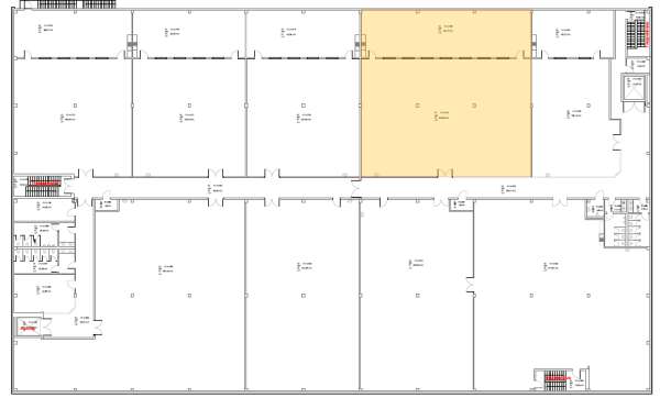
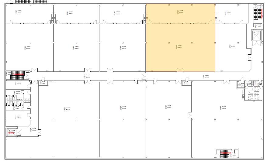
Grundrisse


Anbindung

Bus
450 m
U-Bahn
450 m
S-Bahn
1,5 km
Flughafen-BER
40 km

Karte

Ansprechpartner

Philipp Schulz

Tel.: +49 (0)30 600 31 55 - 01
E-Mail.:

Exposé anfragen

Wir speichern Ihre Daten zur Bearbeitung Ihrer Anfrage. Weitere Informationen erhalten Sie in unserer Datenschutzerklärung.



In der Nähe