Idealer Firmensitz mit flexibler Raumgestaltung und hochwertiger Ausstattung

Adresse
Schellingstraße 1
10785 Berlin
Mitte
Verfügbar ab
Sofort
Fläche
bis 7.366 m2
Teilbar ab m2
ab 397 m2
Mietpreis ab m2
ab
Provision
Provisionsfrei
Ausstattung
- KLIMATISIERUNG: Kühldecken, innenliegender Sonnenschutz
- EDV: Doppel-Hohlraumboden
- HEIZUNGSART: Fernwärme/Fernkälte
- STELLPLÄTZE: Öffentliche Tiefgarage unter dem gesamten Areal
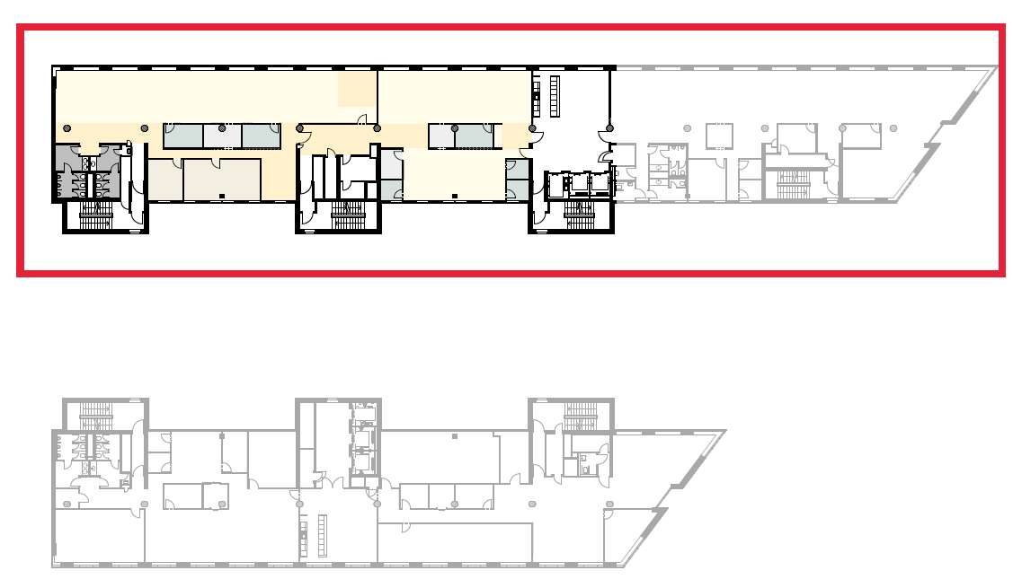
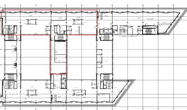
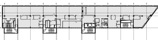
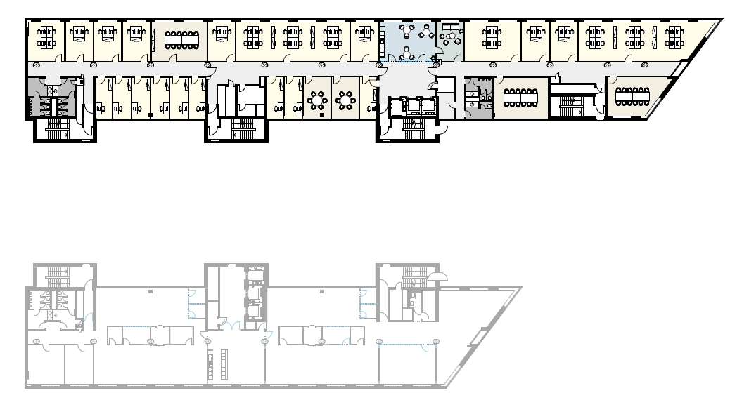
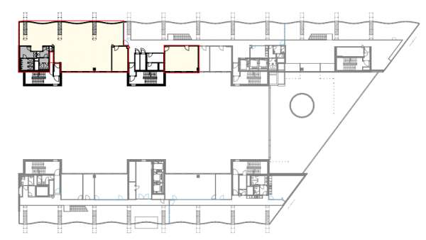
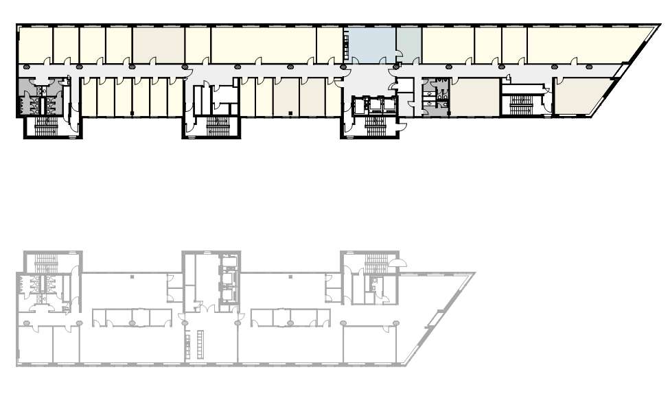
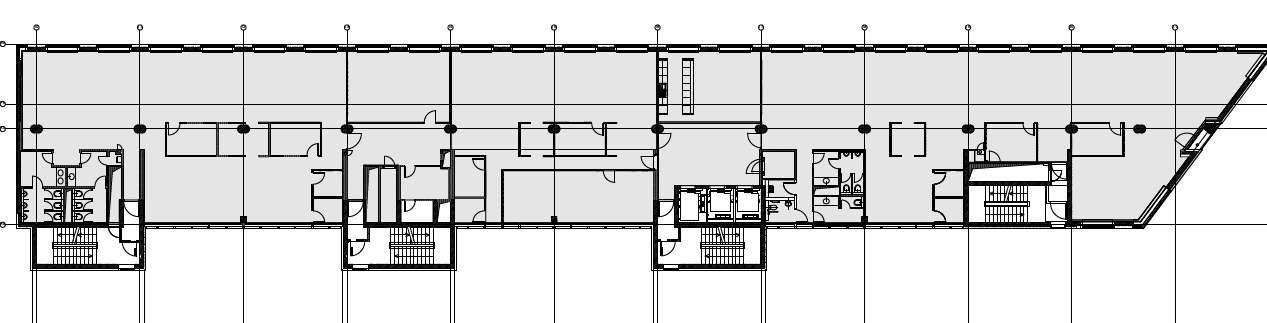
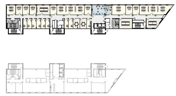
Grundrisse
Anbindung
25,1 km
650 m
350 m
3,1 km
650 m
3,1 km
Karte