Architektonisches Highlight in Berlin: 'Lenné Eins' vereint Funktion und Stil nahe dem Reichstag

Adresse
LENNÉ EINS
Lennéstraße 1
10117 Berlin
Mitte
Verfügbar ab
Sofort
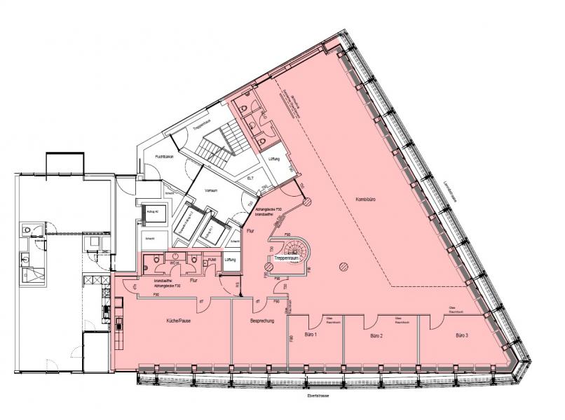
Fläche
bis 481 m2
Teilbar ab m2
ab 481 m2
Mietpreis ab m2
ab
Provision
Provisionsfrei
Ausstattung
- STELLPLÄTZE: stehen in ausreichender Anzahl in TG zur Verfügung
- EDV: Kombination aus Hohlraumboden mit Doppelbodenbereichen
- KLIMATISIERUNG: Teilklimaanlage mit den Luftaufbereitungsfunktionen, Heizen und Kühlen im Außenluftbetrieb über Fußbodeninduktionsgeräte
- BESONDERHEITEN: Teilweise Glas-Systemtrennwände, Dusche im Mietbereich, Zugangskontrollsystem, Raumhöhe bis zu 3 m
- BELEUCHTUNG: Aluminiumpendel-leuchten, in den Fluren mit Einbauleuchten
- KELLER/LAGER: Lagerflächen im UG können zusätzlich angemietet werden
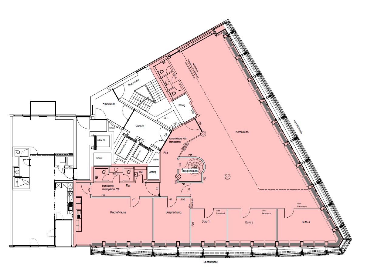
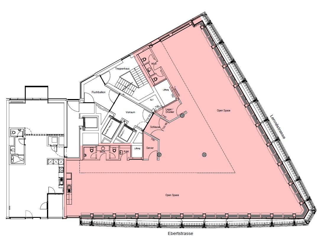
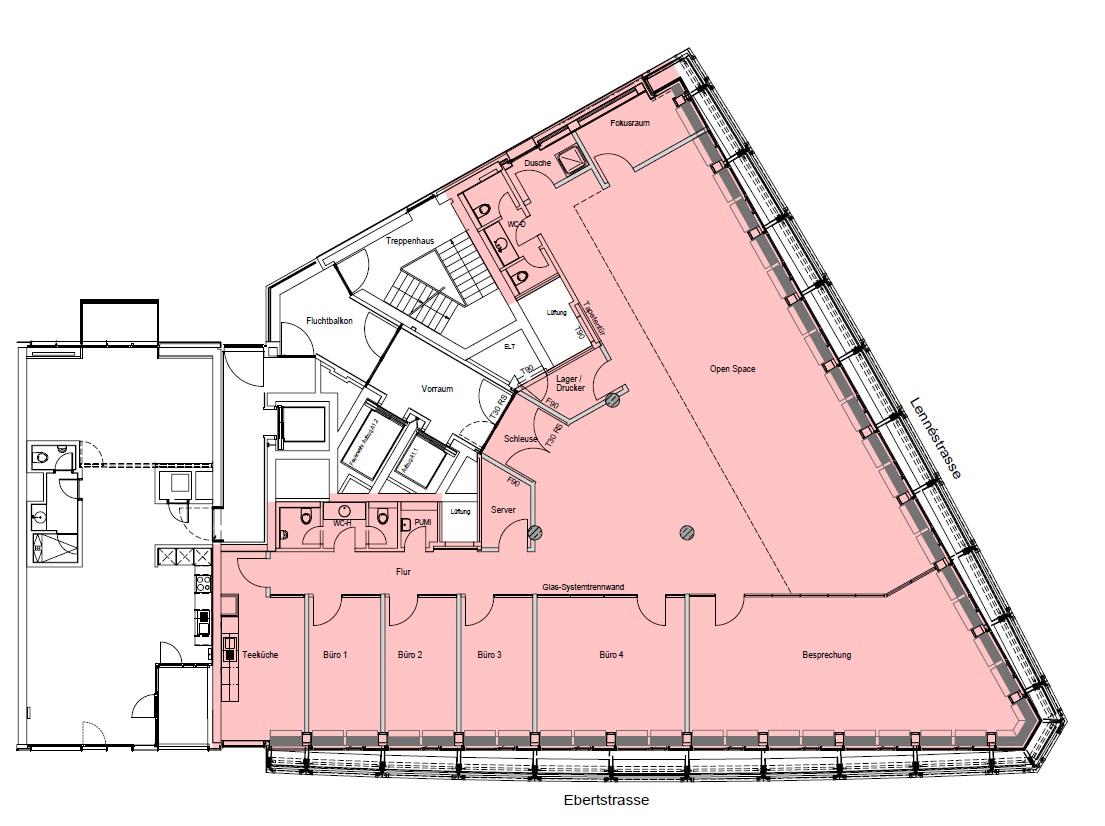
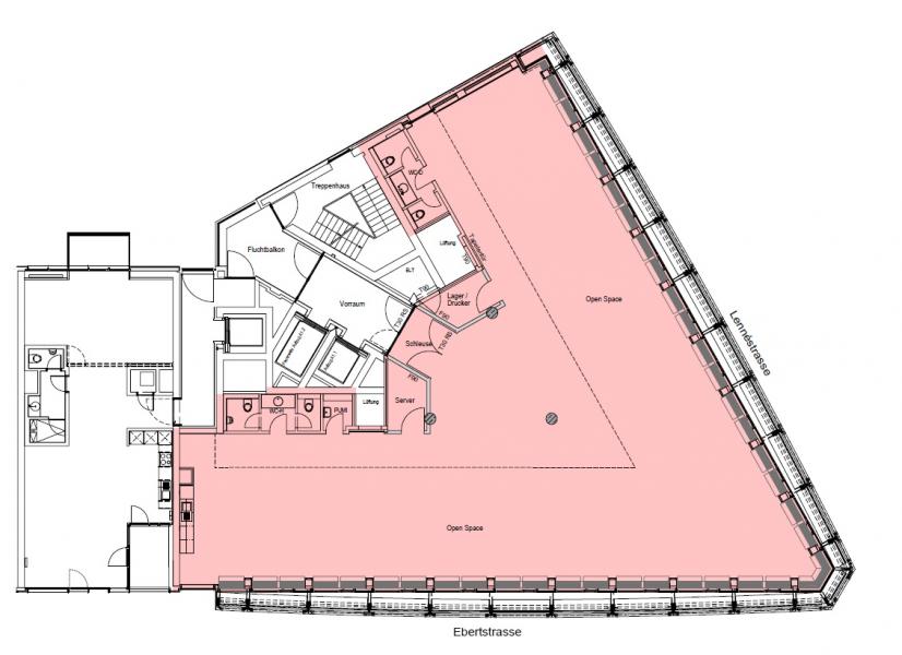
Grundrisse
Anbindung
350 m
350 m
350 m
350 m
350 m
23,6 km
1,9 km
Karte