Flexibel einteilbare Büroflächen im ehemalige Abspannwerk Adlershof

Adresse
Abspannwerk
Radickestraße 59 - 61
12489 Berlin
Treptow-Köpenick
Verfügbar ab
Sofort
Fläche
bis 1.391 m2
Teilbar ab m2
ab 300 m2
Mietpreis ab m2
ab
Provision
Provisionsfrei
Ausstattung
- EDV: CAT 7, Glasfaser borhanden, Zutrittskontrollsystem zzgl. Einbruchmeldeanlage
- ESG|NACHHALTIGKEIT: PV-Anlagen in Verbindung mit Wärmepumpen
- BALKON/TERRASSE: Dachterrasse
- KLIMATISIERUNG: Vollumfängliche Klimatisierung
- BESONDERHEITEN: autarke und emmisionsfreie Energieversorgung über PVT und und Wärmepumpe
- STELLPLÄTZE: Auf Anfrage verfügbar
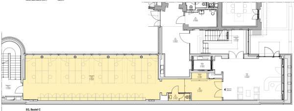
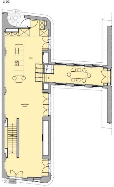
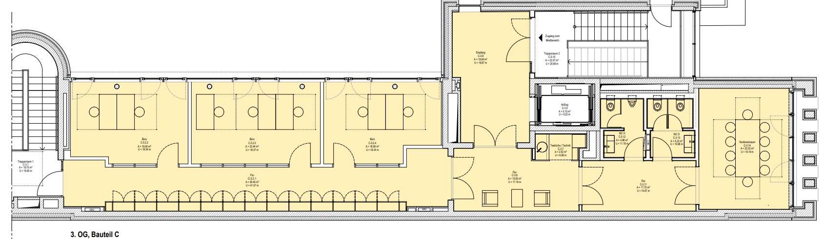
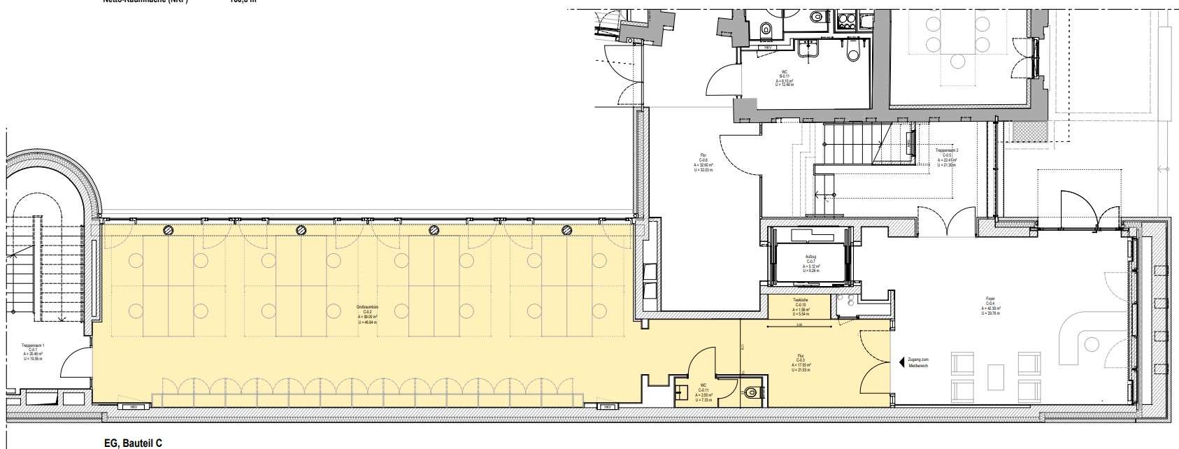
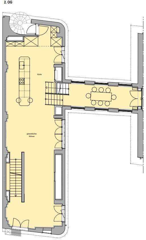
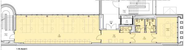
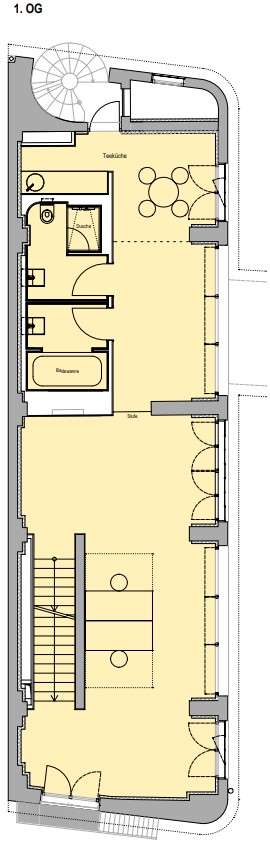
Grundrisse
Anbindung
11,8 km
450 m
120 m
400 m
Karte