Zurück

Loftige Gewerbeflächen mit Charakter im BRICKHUB

Brickhub - Brick 2

Adresse
Brickhub - Brick 2
Eichborndamm 141-165
13403 Berlin
Reinickendorf

Verfügbar ab
Sofort


Fläche
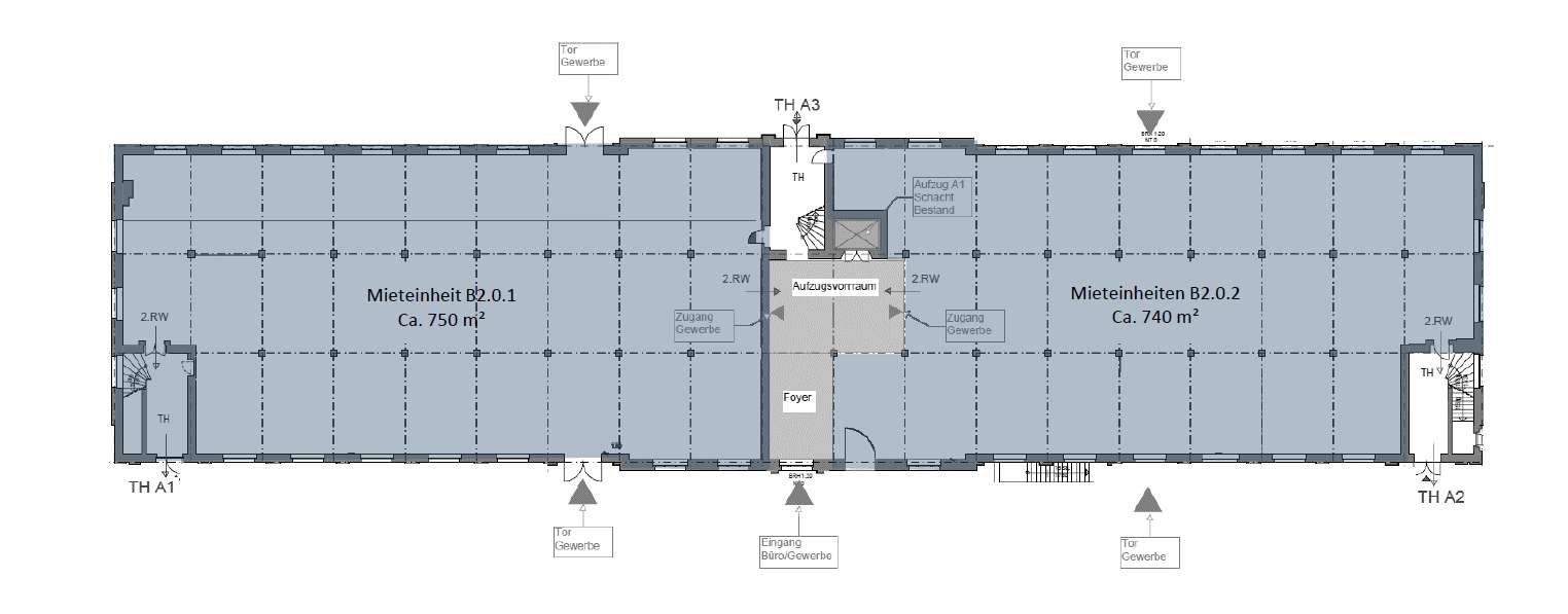
bis 3.000 m2

Teilbar ab m2
ab 740 m2


Mietpreis ab m2
ab 15,50 €

Provision
Provisionsfrei


Ausstattung

  • BESONDERHEITEN: Aventos-Bienen für Biodiversität auf dem Gelände, 54 LKW-Docks, Deckenhöhe bis 5,0 m
  • KELLER/LAGER: bis zu 685 m² Lagerflächen im UG, teilbar an ca. 50 m²
  • STELLPLÄTZE: bis zu ca. 100 Außenstellplätze, E-Mobility
  • ZERTIFIZIERUNG: DGNB-Gold, Green Lease, PV-Strom

Grundrisse


Anbindung

S-Bahn
750 m
U-Bahn
700 m
Bus
40 m
Regionalverkehr
8,1 km
Flughafen-BER
39,1 km

Karte

Ansprechpartner

Renée Neumann
Real Estate Consultant

Tel.: +49 (0)30 600 31 55 - 01
E-Mail.:

Exposé anfragen

Wir speichern Ihre Daten zur Bearbeitung Ihrer Anfrage. Weitere Informationen erhalten Sie in unserer Datenschutzerklärung.



In der Nähe